+13
Provins (77160)

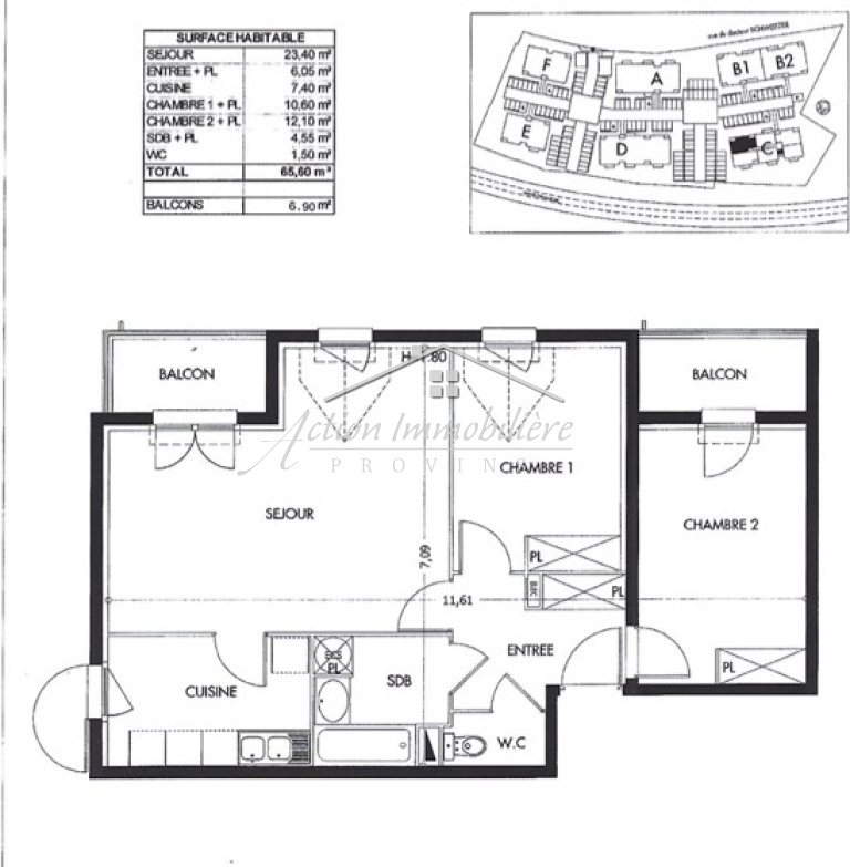
Appartement 3 pièce(s) 2 chambre(s) 66.19 m²

1
Balcon
2
135 000 €
Réf 5649

Découvrez aujourd'hui cet appartement au 1er étage dans une résidence sécurisée avec 2 places de parking, comprenant un salon avec balcon, une cuisine, une chambre avec petit placard et une chambre avec balcon, une salle de bain et un WC. Appartement à 2 pas de la gare de Provins (ligne P direction PARIS EST).

Double vitrage en bois, volet en bois. tout à l'égout. Le tout en très bon état. Aucun travaux à prévoir.

Appel de fond annuel : 1250 € foncier 2025 : 1100 €

Contactez nous dès maintenant pour visiter !

Bilan énergétique

Diagnostics énergetiques
A propos de ce bien Caractéristiques de ce bien
  • Surface 66,19 m²
  • carrez 66,19 m²
  • 2 chambre(s)
  • 1 salle(s) de bain
  • cuisine américaine
  • Chauffage individuel : radiateur (electrique)
  • 2 parking(s)
  • 1er étage
  • 2 étage(s)
  • balcon
  • terrasse

Info copro

Copropriété
  • Copropriété Oui

Financier

Informations financières
Prix de vente 135 000 € Les honoraires d'agence seront intégralement à la charge du vendeur
Taxe foncière annuelle 1 100 €

Simulation

Calcul des mensualités
* Champs obligatoires
Action Immobilière Agence